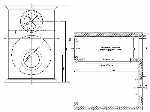
PIROL C GEHÄUSE

Zuschnittliste, Abmessungen (mm)
Aufbau

Gehäusematerial:

19 mm Span -oderMDF falls nicht anders vermerkt

2 St. Front-/Rückwand:

302 x 346 mm

2 St. Seitenwände:

340 x 384* mm

2 St. Deckel/Boden:

340 x 272 *mm

1 St. Versteifungsbrett :

302 x 234 mm

* Diese Zuschnitte weisen eine 45° Fase auf. Bei stumpfer Verleimung müssen die Maße entsprechend abgeändert werden.

• Wir gehen davon aus, daß alle Teile aus der Stückliste schon genau zugesägt sind. Dann wird wie folgt verfahren:

1. Aus der Frontwand werden die Ausfräsungen für den MDT32S und MW265 gefräßt. Die Öffnungen für das BR-Rohr sowie des Terminals werden ebenfalls in diesem Arbeitsschritt vorgenommen.

2. Nun wird die Rückwand auf die Arbeitsfläche gelegt und umlaufen mit den Seitenkanten verklebt. Dabei ist zu beachten, dass vor dem Einfügen des Versteifungsbrettes die Aussparung heraus gesägt wird.

3. Bevor dann die Frontwand von oben aufgesetzt wird, werden alle Fugen noch einmal auf Dichtigkeit überprüft. Das Versteifungsbrett stützt dabei die Frontwand und verhindert, dass diese während des Trocknens nach unten fällt. Das Gehäuse wird nun mit zwei oder mehr Spanngurten fest zusammengepresst.

4. Ist über Nacht nun alles getrocknet, können die leicht überstehenden Kanten verschliffen und die Fasen an die Seitenkanten angebracht werden. Jetzt kann mit der Oberflächenbehandlung begonnen werden. Wertvolle Hilfestellung zum Thema Lackieren und Furnieren gibt es in den Selbstbau-Zeitschriften Klang+Ton oder HobbyHifi.