LINEA 2000 GEHÄUSE Art.Nr: 1349039

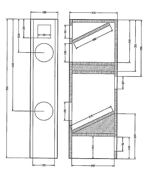
Zuschnittliste, Abmessungen (mm)
Gehäusevarianten / farben

Gehäusematerial:

19mm Span -oderMDF

Seitenteile (2 Stk):

950 x 330

Deckel, Boden, 2x Trennbrett:

292 x 150

Front + Rückwand (2 Stk):

950 x 150

Trennbrett schräg oben

280 x 150

Trennbrett schräg unten

315 x 150

Hinweise & Preise

Die Frequenzverlauf des ER4 hängt im hohen Maße mit der Bedämpfung des nach hinten abgestrahlten Schall zusammen. Als beste Lösung erwies sich hierbei eine Kombination aus Noppenschaumstoff und Dämmflies. Eine Noppenschaumstoffplatte von ca. 11 x11 cm wird direkt hinter dem Hochtöner angebracht, wobei die glatte Seite dem ER4 zugewandt ist. Die verbleibende Lücke zwischen ER4-Rückwand und Noppenschaumstoff wird mit Dämmflies ausgelegt.

Die Bedämpfung der unteren Baßkammer geschieht ebenfalls mit Noppenschaumstoff. An beiden Seiten der Kammer sowie der Frontwand und der Decke werden Noppenschaumstoff-Platten angebracht, der Rest der Kammer bleibt frei. Das obere Tief-Mitteltongehäuse wird gut mit Dämmwolle ausgefüllt.

 

Für das untere Baßreflexrohr werden zwei TR60 -Baßreflexrohre miteinander verklebt, so daß ein 29 cm langes Rohr mit beidseitig verrundeten Öffnungen entsteht.

Gehäusefarben

DM / Stk
EURO / Stk

• A • MDF roh

408,00
208,61

• B •

623,00
318,53

• C •

782,00
399,83

• D •

• E •

663,00
338,99

• F •

838,00
428,46
• B • Seidenmattlack schwarz, weiß, blau o. rot

• C • Seidenmattlack jede RAL-Farbe möglich

• D • Esche schwarz, weiß

• E • Buche furniert klarlackiert

• E • Kirsche furniert klarlackiert

Tipp

Je nach Raumgröße und Aufstellung kann durch Verschließen des Baßreflex-Rohres mit Dämmaterial der Baßbereich feinabgestimmt werden.