SILVER GEHÄUSE (Gehäusepreis auf Angrage)

Hinweise
Zusammenbau

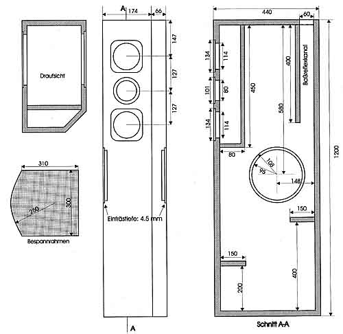
Im Baßgehäuse wird eine Noppenschaumstoffmatte in Streifen geschnitten, die im unteren sowie oberen Gehäuseteil angebracht werden, die beiden Seitenwände bleiben frei. Das Mitteltongehäuse wird vollständig mit Sonofil ausgekleidet.
TIP

Tip: Der experimentierfreudige Boxenbauer montiert einen Schalter in das Anschlußterminal, mit dem man während des Betriebs die Impedanzlinearisierung zu- und abschalten kann. Dadurch können schnell Hörtests gemacht werden und man ist immer flexibel, egal was angeklemmt ist; Röhre oder Transistor.

Der Aufbau dieser recht großen Standbox gestaltet sich relativ einfach, wenn zuerst nur die Frontwand , die zwei Seitenwände mit Decke- und Bodenplatte verleimt werden. Durch die offene Rückwand wird dann zuerst das Mitteltongehäuse und die Verstrebungen angebracht. Danach folgt das Brett, welches mit der Rückwand den nach oben gerichteten Baßreflexkanal bildet. Ist alles miteinander gut verleimt und getrocknet, sämtliche Löcher für die Kabeldurchführungen gebohrt und die Frequenzweichen schon mal probehalber angeschraubt , wird die Rückwand eingeleimt. Die Probemontage der Frequenzweiche erleichtert hinterher ungemein den Einbau, wenn, durch die ohnehin beengten Öffnungen schon vorhandenen Schraubenlöcher benützt werden können. Beim Aufbau muß besonders auf die Spiegelbildlichkeit geachtet werden. Das akustisch beste Verhalten stellt sich ein, wenn die breiten Fasen zueinander nach innen zeigen.