| 
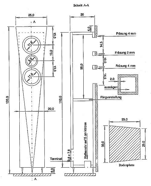
            Holzliste in 19 mm MDF: 
             20,0 x 110,0 (2x) Front/Rückwand 
             16,2 x 110,0 (2x) Seiten 
             16,2 x 16,2 (3x) Deckel/Boden/ 
            Ringversteifung 
             Weichfaserdämmplatte 6 - 12 mm: 
             12,0 x 50,0 (7x) auf alle langen 
             Wände außer obere Schallwand 
             Buchenleimholz 15 - 19 mm: 
             25,0 x 120,0 (1x) Frontblende 
             Zusammenbau 
            Nachdem die Ringversteifungen ausgesägt sind, 
            deren Lage auf Front, Rückwand und Seiten markieren. Auf den 
            Rückwänden je 2 Weichfaserdämmplatten ca. 4 cm von den Rändern mit 
            Spezial-Tapetenkleister aufkleben, damit der Kleister bis zur 
            weiteren Verwendung der Rückwände antrocknen kann. Auf die 
            Frontplatte zuerst die 1. Seite, dann den Deckel, die 
            Ringversteifung, den Boden und die 2. Seite kleben.   | 
          
             Jetzt die übrigen Weichfaserdämmplatten so 
            auf die Innenwände kleben, dass sie rundum ca. 2 cm Platz haben. Die 
            Rückwand schließt das Gehäuse. Die Gehäuse nach Trocknung des 
            Klebers (über Nacht) glattschleifen, die Löcher für das Reflexrohr 
            und die Anschlussdose sägen und den Korpus farbig und die dreieckig 
            zugeschnittene Frontblende klar lackieren. Für die Verklebung der 
            Frontblende mit dem Korpus Lackleim benutzen. Wenn eine Oberfräse 
            zur Verfügung steht oder ein Schreiner hilft, sollten die 
            Lautsprecher oberflächenbündig eingesenkt werden. 
            Lautsprecherausschnitte sägen. Die Frequenzweiche wird hinter den 
            unteren Bassmitteltöner auf die Rückwand geschraubt oder mit 
            Heiþkleber geklebt. Das Gehäuse locker mit Sonofill füllen. Der 
            Bereich bis 10 cm über dem Reflexrohr bleibt frei. Aus 10 mm 
            Alu-Rohr 6 cm lange Stücke als Abstandshalter sägen und mit langen 
            Schrauben durch die Bodenplatte unter den Korpus schrauben 
            (vorbohren). Terminal und Lautsprecher anlöten (auf Polung achten!) 
            und anschrauben. Wenn alle Lautsprecher aufgebaut sind, steht einem 
            Heimkino- oder Musikerlebnis nichts mehr im Weg. 
          |