ODIN I.T. GEHÄUSE

Zussammenbau
Gehäusevarianten / farben

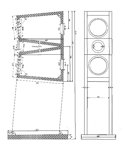
Der zunächst recht komplizierte Aufbau verliert bei näherer Betrachtung den Schrecken, wenn man fest stellt, daß hier nur drei Winkel für den Gehäusezuschnitt auftreten, die nicht 90° entsprechen. Nachdem die einzelnen Brettchen, die zwischen den beiden nach unten laufenden Seitenwänden sich befinden, zugesägt und mit den nötigen Ausfräsungen für die Lautsprecher versehen wurden ( Loch für die Kabelführung nicht vergessen) werden diese auf eine der beiden grob zugesägten Seitenwände plaziert und miteinander verleimt. Für minimale Verluste empfiehlt es sich, die versenkten Schallwandöffnungen für die Baßlautsprecher auf der Innenseite mit einer 45° Fase zu versehen (siehe technische Zeichnung ). Nun fehlt nur noch die zweite Seitenwand. Diese wird als nächster Arbeitsschritt auf die eingeleimten Zwischenbrettchen gelegt und mit Gewichten beschwert. Nachdem alles getrocknet ist werden die überstehenden Kanten mit einer Oberfräse oder einem Bandschleifer plan mit dem Corpus gefräst bzw. geschliffen. Als dann werden die 45 ° Fasen angebracht, welche besonders an den Frontwänden von akustischer Bedeutung sind. Die Fase hat eine Breite von 25 mm. Auf der Rückseite dienen Sie nur der schöneren Optik. Sind nun alle Holzarbeiten beendet, kann lackiert oder furniert werden. Am Schluß wird der Sockel von unten mit 4 Holzschrauben angebracht. Soll die in der Stückliste aufgeführte SPEAKON- Buchse als Terminal verwendet werden, muß mit einem 24 mm Holzbohrer an gewünschter Stelle ein Loch gebohrt werden.

Gehäusefarben

DM / Stk
EURO / Stk

•Furnier Standart

1149,00
587,47

• B •

-
-

• C •

1099,00
561,91

• D •

• E •

-
-

• F •

-
-
• B • Seidenmattlack schwarz, weiß, blau o. rot

• C • Seidenmattlack jede RAL-Farbe möglich

• D • Esche schwarz, weiß

• E • Buche furniert klarlackiert

• E • Kirsche furniert klarlackiert