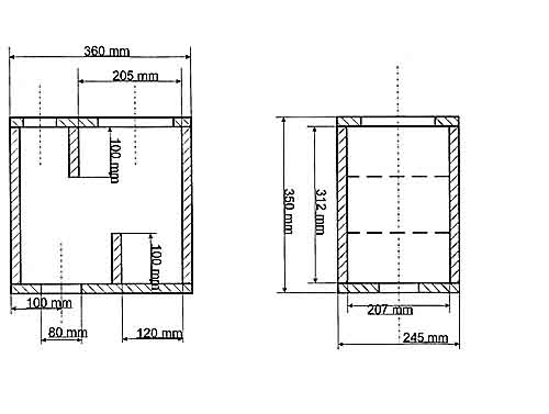
DAS MODUL FRONT GEHÄUSE
Hinweise
BR-Länge: 5 cm / Material: 19mm MDF