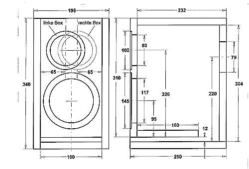
SPUTNIK 14 - 2 GEHÄUSE Art.Nr: 1349011

Zuschnittliste, Abmessungen (mm)
Gehäusevarianten / farben

Gehäusematerial:

18 mm Span -oderMDF

Frästiefe TT:

3,0 mm

Frästiefe HT:

3,5 mm

Ausbruchdurchmesser für Reflexrohr:

72 mm

Seitenwände 1 + 2:

340 x 250

Deckel / Boden

232 x 16 / 250 x 160

Schallwand:

310 x 160

Rückwand:

304 x 160

Reflextunnel:

160 x 160

Hinweise & Preise

Bedämpfung: Lockere Füllung mit Polyestervlies. Der Bereich um das Ende des Reflextunnels bleibt frei.

Frequenzweichenmontage auf Terminal T105S ist möglich.

!!Schallwand für linke und rechte Box mit unterschiedlichen Ausfräsungen für Hochtöner!!

Gehäusefarben

DM / Stk
EURO / Stk

• A • MDF roh

177,00
90,50

• B •

298,00
152,36

• C •

408,00
208,61

• D •

• E •

308,00
157,48

• F •

379,00
193,78
• B • Seidenmattlack schwarz, weiß, blau o. rot

• C • Seidenmattlack jede RAL-Farbe möglich

• D • Esche schwarz, weiß

• E • Buche furniert klarlackiert

• E • Kirsche furniert klarlackiert